
【悦艺装饰 第69期】中国建筑第八工程局有限公司(华南)安装分公司

中国建筑第八工程局有限公司(华南)安装分公司办公室设计装修,办公室地址位于华观路时代E-PARE6座4层,面积约860㎡。办公室设计整体简约风格,大理石前台及背景墙,高建隔隔断等。
感谢中国建筑第八工程局有限公司各级领导对我公司的信任和支持!欢迎向我们提出建议和批评,我们将以诚心诚信真诚和热情服务与每一位客户。
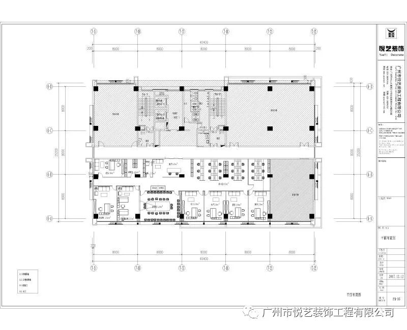
△上图:中国建筑第八工程局有限公司(华南)安装分公司平面设计图
△上图:前台——大理石背景墙面以及大理石前台设计
△上图:办公区域——半隐秘的卡座及透亮的高建隔设计
△上图:办公室
△上图:经理室
△上图:会议室
广州市悦艺装饰工程有限公司
地址:广州市天河区中山大道西215号加业商务中心A129-130室
广州市科学大道118-120号绿地中央广场B1栋804室
广州市萝岗香雪牌坊锐丰中心1栋607室
广州市萝岗开创大道萝岗奥园广场H4-1006室
24小时联系电话:020-38090766 18664866428
网址:www.gzyueyi.net
咨询热线: 020-38090766 38090725 QQ咨询:2252082831 E_mail: gzyueyi@163.com
地址:广州市科学大道118号绿地中央广场B1栋803-804室
ICP备案号:粤ICP备14058611号 站内统计